ID CP1687628

Apartament 4 Camere 2 Bai 80mp+ Garaj | Etaj 3 | Zona Timocului

Această proprietate nu mai este activă,
te invităm să vizualizezi proprietăți similare

ID CP1687628

115,000 €

Apartament cu 4 camere de vânzare
Timocului-Saguna, Timisoara
80 mp
1990

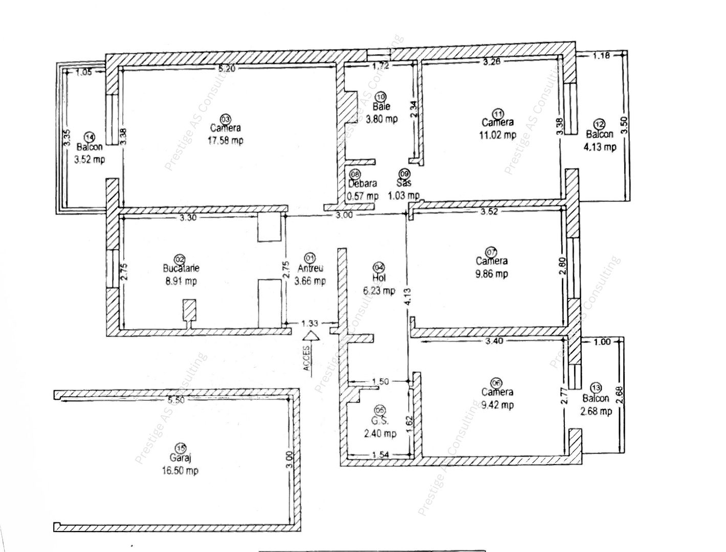
Va propunem spre vanzare, in exclusivitate COMISION 0%, un Apartament insorit, spatios, cu elemente de modernism, situat la etajul 3 in cadrul unui bloc cu 4 Etaje, pe Strada Timocului. Se vinde partial mobilat.

Apartamentul are o pozitionare perfecta, avand in vedere distanta semnificativ de mica la care se afla mijloacele de transport in comun. De asemenea, putem avea in vedere principalele puncte de referinta, pe care le gasim in imediata apropiere: P-ta Badea Cartan, Magazinul Profi, Sala de sport, Restaurante, Bioclinica, Loc de joaca pentru copii.

Suprafata de 95 de mp este proportionata perfect, pentru a putea oferi confortul maxim viitorului cumparator. Pozitionarea mobilei si a ornamentelor prezentante este realizata pentru oferirea unui spatiu cat mai eficient si cat mai aerist. Compartimentarea este realizata din 4 camere cu trei dormitoare, 3 balcoane, 2 bai si 3 dressing-uri incorporate in peretele din holul de distributie.

Confortul termic se realizeaza prin Termoficare, cu posibilitatea viitorului cumparator de a instala centrala termica.

Se poate achizitiona contra cost un garaj in suprafata de 17mp, situat in spatele blocului.

Va suntem la dispozitie pentru mai multe detalii.

Citește mai mult

  • Tip apartament
    Apartament
  • Compartimentare
    Decomandat
  • Număr camere
    4
  • Dormitoare
    3
  • Număr bucătării
    1
  • Număr băi
    2
  • Geam la baie
    Da
  • Etaj
    3
  • Suprafață utilă
    80 mp
  • Suprafață construită
    95 mp
  • Disponibilitate
    Imediat
  • Orientare
    Est
  • Confort
    1
  • Stare interior
    Renovat
  • Număr balcoane
    3
  • Număr garaje
    1
  • Imobil
    Bloc de apart.
  • Stadiu construcție
    Finalizată
  • An construcție
    1990
  • Număr etaje clădire
    4

Facilități

Acoperiș
Apă
Aragaz
Bucătărie utilată
Cabină de duș
Cadă
Canalizare
CATV
Curent
Dressing
Frigider
Garaj
Gaz
Hotă
Iluminat stradal
Interfon
Internet
Loc de joacă copii
Mașină de spălat rufe
Mașină de spălat vase
Mijloace de transport în comun
Mobilat complet
Străzi asfaltate
Telefon
Termoficare
Necesare:

Site-ul nu poate funcționa corect fără aceste cookie-uri. Vezi cookie-urile

Statistică:

Strângem statistici anonime despre voi, vizitatorii unici, pentru a vă îmbunătăți experiența dumneavoastră. Vezi cookie-urile

Marketing:

Pentru a ne promova mai eficient serviciile noastre, folosim cookies pentru a vă identifica și a vă oferi proprietăți și servicii personalizate. Vezi cookie-urile

Acest site folosește cookies, află detalii. Alege ce tipuri de cookies dorești să permitem: