ID CP2881214

Proprietate rara in Piata Unirii | 140 mp | Cladire monument istoric

Această proprietate nu mai este activă,
te invităm să vizualizezi proprietăți similare

ID CP2881214

475,000 €

Apartament cu 3 camere de vânzare
Ultracentral, Timisoara
140 mp
1910

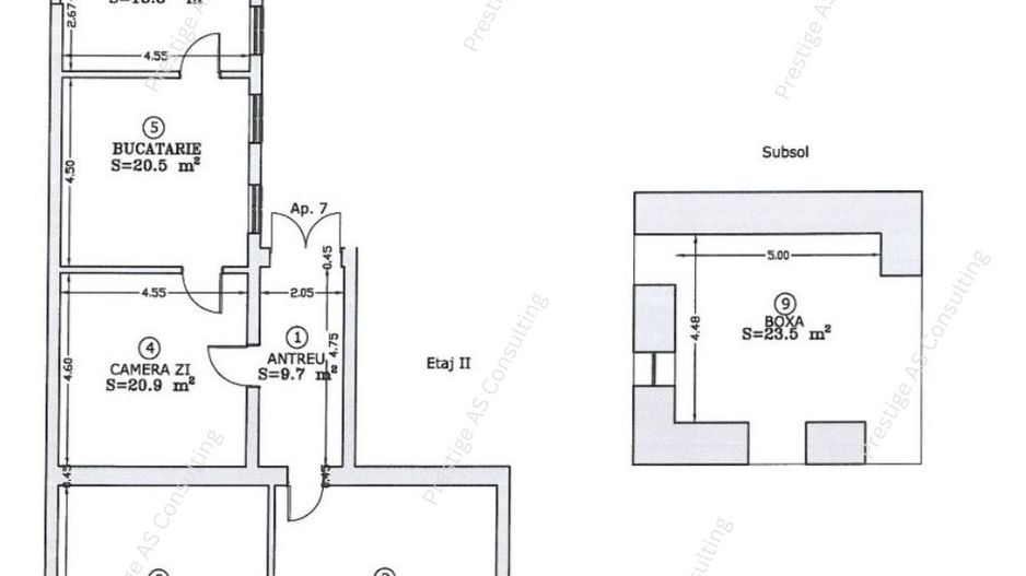
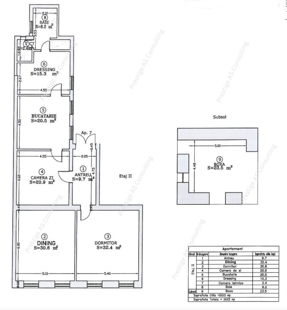
Proprietate rara, disponibila spre vanzare in Zona 0 a Timisoarei, la etajul 2 al unei cladiri istorice din 1910, situata chiar in Piata Unirii – una dintre cele mai valoroase si stabile zone din oras.

Cu o suprafata utila de 140 mp, acest apartament se adreseaza celor care cauta spatiu, rafinament si o locatie cu adevarat reprezentativa.

Interiorul imbina armonios elemente clasice si accente moderne: tavane inalte, ancadramente decorative, candelabre statement si finisaje atent alese. Fiecare incapere transmite eleganta si echilibru, intr-un ambient sofisticat, greu de replicat in proiectele noi.

Compartimentare functionala:

– hol generos de acces

– living amplu

– dining separat

– bucatarie inchisa, complet utilata

– dormitor

– birou

– baie cu geam

– camera tehnica

Cladirea este monument istoric, iar proprietatea beneficiaza de orientare estica, centrala proprie, aer conditionat si boxa la subsol.

Pozitionarea ultracentrala ofera acces imediat la restaurante, cafenele, institutii si puncte de interes major. Astfel de proprietati apar extrem de rar in piata si isi mentin valoarea in timp.

Ideala atat pentru rezidenta exclusivista, cat si pentru investitie premium.

Citește mai mult

  • Tip apartament
    Apartament
  • Număr camere
    3
  • Dormitoare
    1
  • Număr bucătării
    1
  • Număr băi
    1
  • Geam la baie
    Da
  • Etaj
    2
  • Suprafață utilă
    140 mp
  • Suprafață construită
    145 mp
  • Disponibilitate
    Imediat
  • Orientare
    Est
  • Imobil
    Casă / Vilă
  • Stadiu construcție
    Finalizată
  • An construcție
    1910
  • Monument Istoric
    Da
  • Număr etaje clădire
    2
  • Are pod
    Da

Facilități

Acoperiș
Aer condiționat
Apă
Aragaz
Boxă la subsol
Bucătărie închisă
Bucătărie utilată
Cabină de duș
Calorifere
Canalizare
CATV
Centrală proprie
Curent
Ferestre PVC
Frigider
Gaz
Hotă
Iluminat stradal
Interfon
Internet
Mașină de spălat rufe
Mașină de spălat vase
Mijloace de transport în comun
Mobilat lux
Străzi asfaltate
Telefon
TV
Ușă intrare lemn
Uși interior lemn
Necesare:

Site-ul nu poate funcționa corect fără aceste cookie-uri. Vezi cookie-urile

Statistică:

Strângem statistici anonime despre voi, vizitatorii unici, pentru a vă îmbunătăți experiența dumneavoastră. Vezi cookie-urile

Marketing:

Pentru a ne promova mai eficient serviciile noastre, folosim cookies pentru a vă identifica și a vă oferi proprietăți și servicii personalizate. Vezi cookie-urile

Acest site folosește cookies, află detalii. Alege ce tipuri de cookies dorești să permitem: