ID CP2946321

Apartament 3 Camere+Scara interioara | Lift | Dumbravita-Kaufland

ID CP2946321

159,000 € TVA inclus

Apartament cu 3 camere de vânzare
Dumbravita
63 mp
2021

Va propunem spre vanzare un apartament nou, tip penthouse, cu 4 camere, situat in zona premium de la intrare in Dumbravita, in spatele magazinului Kaufland – o locatie cu acces rapid catre Timisoara si facilitati comerciale la cateva minute.

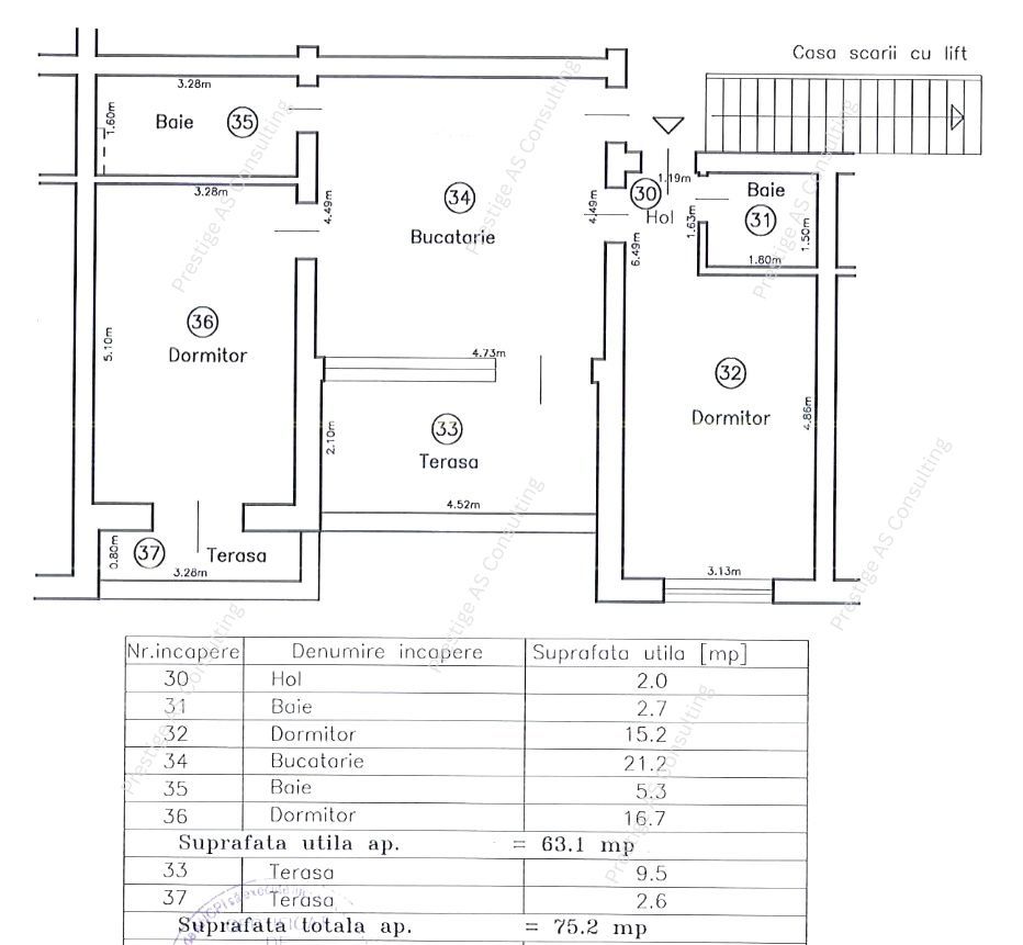
Proprietatea are o suprafata utila de 63 mp, la care se adauga doua balcoane si o terasa spectaculoasa de 40 mp, care conecteaza dormitoarele de la nivelul superior si creeaza un spatiu ideal pentru relaxare sau zona de lounge.

Apartamentul este situat la etajul 3/3 intr-un bloc nou, dotat cu lift, iar in pret este inclus un loc de parcare privat.

Compartimentare inteligenta:

– Hol de acces;

– Living cu bucatarie open-space, cu iesire la balcon;

– Dormitor 1 cu baie proprie si acces prin scara interioara;

– Dormitor 2 cu baie proprie, scara interioara si iesire la balcon.

Exista posibilitatea configurarii a pana la 4 bai, ceea ce transforma proprietatea intr-o optiune excelenta atat pentru locuire, cat si pentru investitie (inchiriere pe termen lung sau corporate).

Dotari si specificatii tehnice: Lift, Videointerfon, Centrala proprie cu incalzire in pardoseala, Pregatit pentru montare panouri fotovoltaice, Rulouri electrice din aluminiu.

Preturi:

– 155.000 Euro + 21% TVA – varianta la alb (fara parchet, usi interioare si obiecte sanitare)

– 185.000 Euro + 21% TVA – varianta la cheie, cu posibilitatea alegerii finisajelor

O proprietate potrivita pentru clienti care isi doresc intimitate, terasa generoasa si o locatie bine cotata, la intrare in Dumbravita.

Pentru detalii suplimentare sau programarea unei vizionari, va stam la dispozitie.

Citește mai mult

  • Tip apartament
    Apartament
  • Compartimentare
    Semidecomandat
  • Număr camere
    3
  • Dormitoare
    2
  • Număr bucătării
    1
  • Număr băi
    1
  • Etaj
    3
  • Suprafață utilă
    63 mp
  • Suprafață construită
    75 mp
  • Suprafață terasă
    55 mp
  • Disponibilitate
    Imediat
  • Număr balcoane
    1
  • Număr locuri parcare
    1
  • Imobil
    Bloc de apart.
  • An construcție
    2021
  • Construcție nouă
    Da
  • Număr etaje clădire
    3
  • Număr etaje retrase
    1

Facilități

Acoperiș
Apă
Bucătărie deschisă
Cabină de duș
Canalizare
CATV
Centrală proprie
Curent
Gaz
Gresie
Iluminat stradal
Încălzire prin pardoseală
Internet
Izolație exterioară
Lift
Mijloace de transport în comun
Nemobilat
Parcare biciclete
Parcare deschisă
Parchet
Rulouri / obloane electrice
Scară interioară
Străzi asfaltate
Telefon
Ușă intrare PVC
Videointerfon
Alexandra Spînu - Prestige AS Consulting
Alexandra Spînu
Consultant Imobiliar

0768638879


Solicită chiar acum o vizionare
Telefon
Sună acum Solicită vizionare
Necesare:

Site-ul nu poate funcționa corect fără aceste cookie-uri. Vezi cookie-urile

Statistică:

Strângem statistici anonime despre voi, vizitatorii unici, pentru a vă îmbunătăți experiența dumneavoastră. Vezi cookie-urile

Marketing:

Pentru a ne promova mai eficient serviciile noastre, folosim cookies pentru a vă identifica și a vă oferi proprietăți și servicii personalizate. Vezi cookie-urile

Acest site folosește cookies, află detalii. Alege ce tipuri de cookies dorești să permitem: