ID CP2985117

Vila individuala renovata complet | 6 camere | 500 mp teren | Str Jean Monnet

ID CP2985117

345,000 €

Casă / Vilă cu 6 camere de vânzare
Girocului, Timisoara
147 mp
2002

Va prezentam o proprietate cu adevarat versatila, ideala atat pentru o familie care cauta confort, intimitate si spatiu, cat si pentru investitori interesati de conversia intr-o clinica, sediu de firma sau activitate premium, situata pe strada privata Jean Monnet din Calea Girocului.

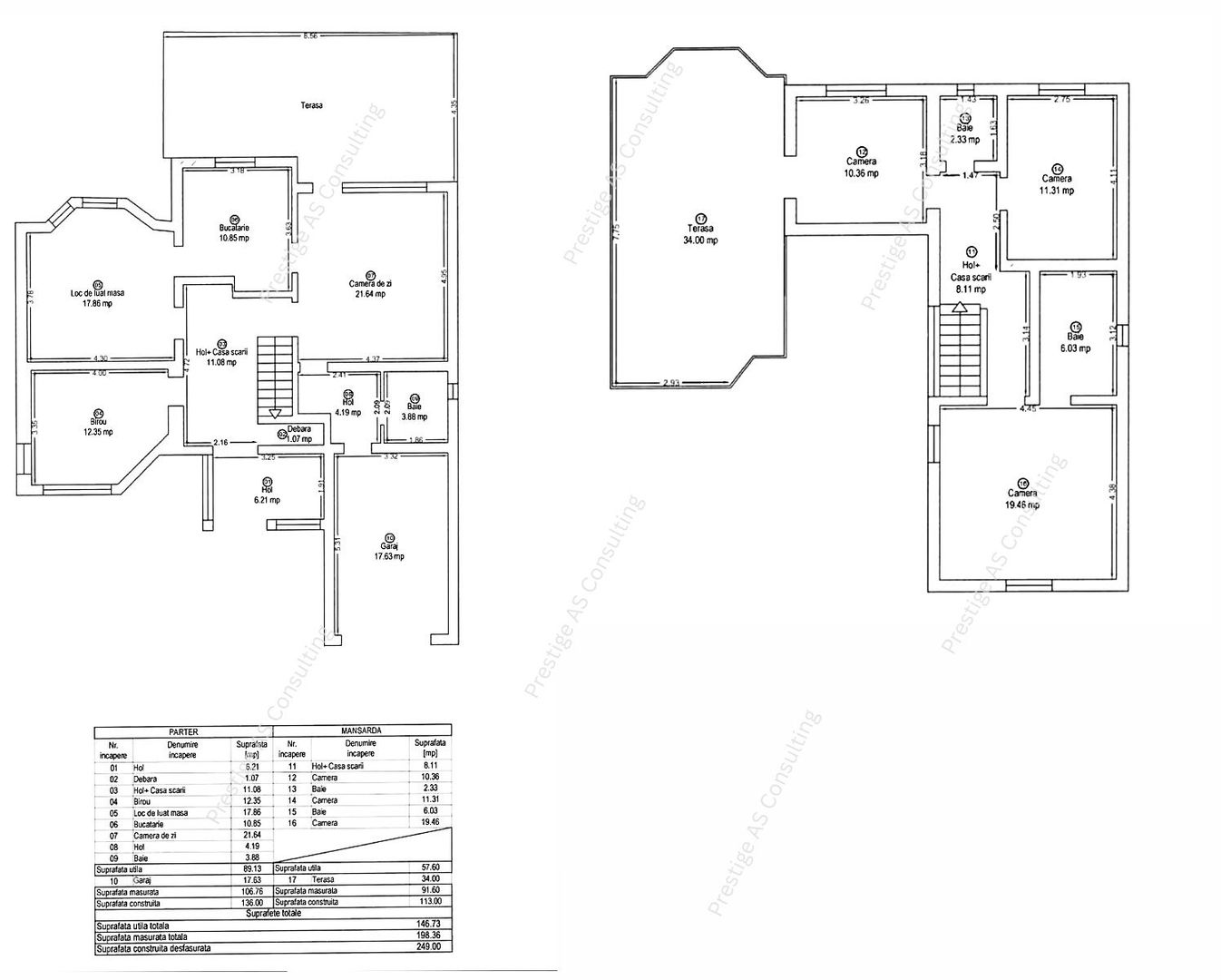
Vila este dispusa pe Part + Etaj +Pod si Garaj cu acces direct din casa, cu o arhitectura echilibrata, clasica, specifica zonelor rezidentiale mature. Renovata integral (interior + exterior, instalatii electrice si sanitare schimbate), cu o suprafata utila de 147 mp si teren de 500 mp, oferind intimitate si acces facil.

Interiorul este bine compartimentat, gandit pentru flux eficient si utilizare multipla: Hol Acces, Birou / camera multifunctionala, Dining, Bucatarie, Living cu iesire pe terasa, Baie si iesirea la Garaj, 3 dormitoare la etaj (dormitor matrimonial cu baie proprie), Baie, Terasa generoasa 34 mp.

Constructia solida (placa de beton intre etaje si pod), impreuna cu dotarile moderne – geamuri tripan, centrala proprie, aer conditionat, foraj la 110m si poarta electrica – transforma aceasta proprietate intr-o investitie sigura pe termen lung.

Pretabila pentru: clinica medicala/stomatologica, cabinete, birouri sau inchiriere premium.

Zona excelenta: 2 min Kaufland si Lidl si Farmacie, 2 min Parc, 5 min Spitalul Judetean, 6 min Shopping City, 10 min Centru, scoli si gradinite – in proximitate.

Pentru detalii suplimentare sau programarea unei vizionari, va stam la dispozitie.

Citește mai mult

  • Număr camere
    6
  • Dormitoare
    4
  • Număr bucătării
    1
  • Număr băi
    3
  • Geam la baie
    Da
  • Număr terase
    2
  • Număr garaje
    1
  • Număr locuri parcare
    4
  • Tip casă
    Individual
  • Stare interior
    Renovat
  • Anul finisării
    2025
  • Suprafață utilă
    147 mp
  • Suprafață construită
    249 mp
  • Suprafață construită la sol (Amprentă)
    100.0 mp
  • Suprafață teren
    500 mp
  • Suprafață curte liberă
    363 mp
  • Deschidere
    23 m
  • Acoperiș
    Țiglă
  • Stadiu construcție
    Finalizată
  • An construcție
    2002
  • Construcție nouă
    Da
  • Tip construcție
    Cărămidă
  • Reabilitat termic
    Da
  • Număr etaje clădire
    2
  • Are pod
    Da

Facilități

Acoperiș
Aer condiționat
Apă
Aragaz
Bucătărie închisă
Bucătărie mobilată
Bucătărie utilată
Cabină de duș
Cadă
Calorifere
Canalizare
CATV
Centrală proprie
Curent
Curte
Faianță
Ferestre PVC
Frigider
Garaj
Gaz
Geamuri tripan
Grădină proprie
Gresie
Hotă
Iluminat stradal
Internet
Izolație exterioară
Loc de joacă copii
Mașină de spălat rufe
Mijloace de transport în comun
Mobilat complet
Parcare deschisă
Parchet
Scară interioară
Spații agrement
Străzi asfaltate
Telecomandă poartă acces auto
Telefon
TV
Ușă intrare PVC
Uși interior MDF
Vopsea lavabilă
WC Serviciu
Alexandra Spînu - Prestige AS Consulting
Alexandra Spînu
Consultant Imobiliar

0768638879


Solicită chiar acum o vizionare
Telefon
Sună acum Solicită vizionare
Necesare:

Site-ul nu poate funcționa corect fără aceste cookie-uri. Vezi cookie-urile

Statistică:

Strângem statistici anonime despre voi, vizitatorii unici, pentru a vă îmbunătăți experiența dumneavoastră. Vezi cookie-urile

Marketing:

Pentru a ne promova mai eficient serviciile noastre, folosim cookies pentru a vă identifica și a vă oferi proprietăți și servicii personalizate. Vezi cookie-urile

Acest site folosește cookies, află detalii. Alege ce tipuri de cookies dorești să permitem: