ID CP2492915

Vila Individuala 6 Camere+Garaj | 500mp Teren | Calea Girocului

Această proprietate nu mai este activă,
te invităm să vizualizezi proprietăți similare

ID CP2492915

309,000 €

Casă / Vilă cu 6 camere de vânzare
Girocului, Timisoara
147 mp
1990

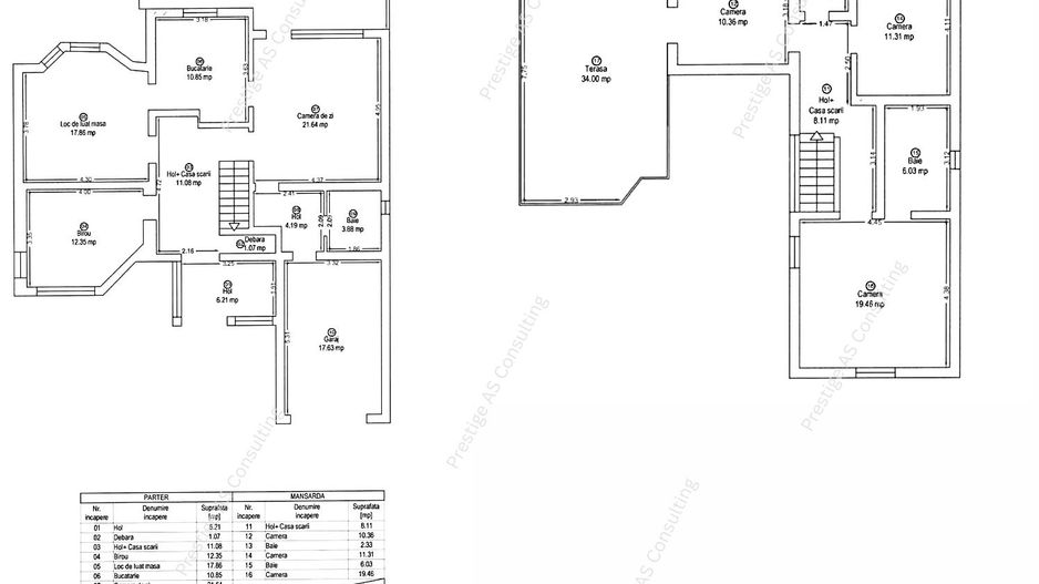
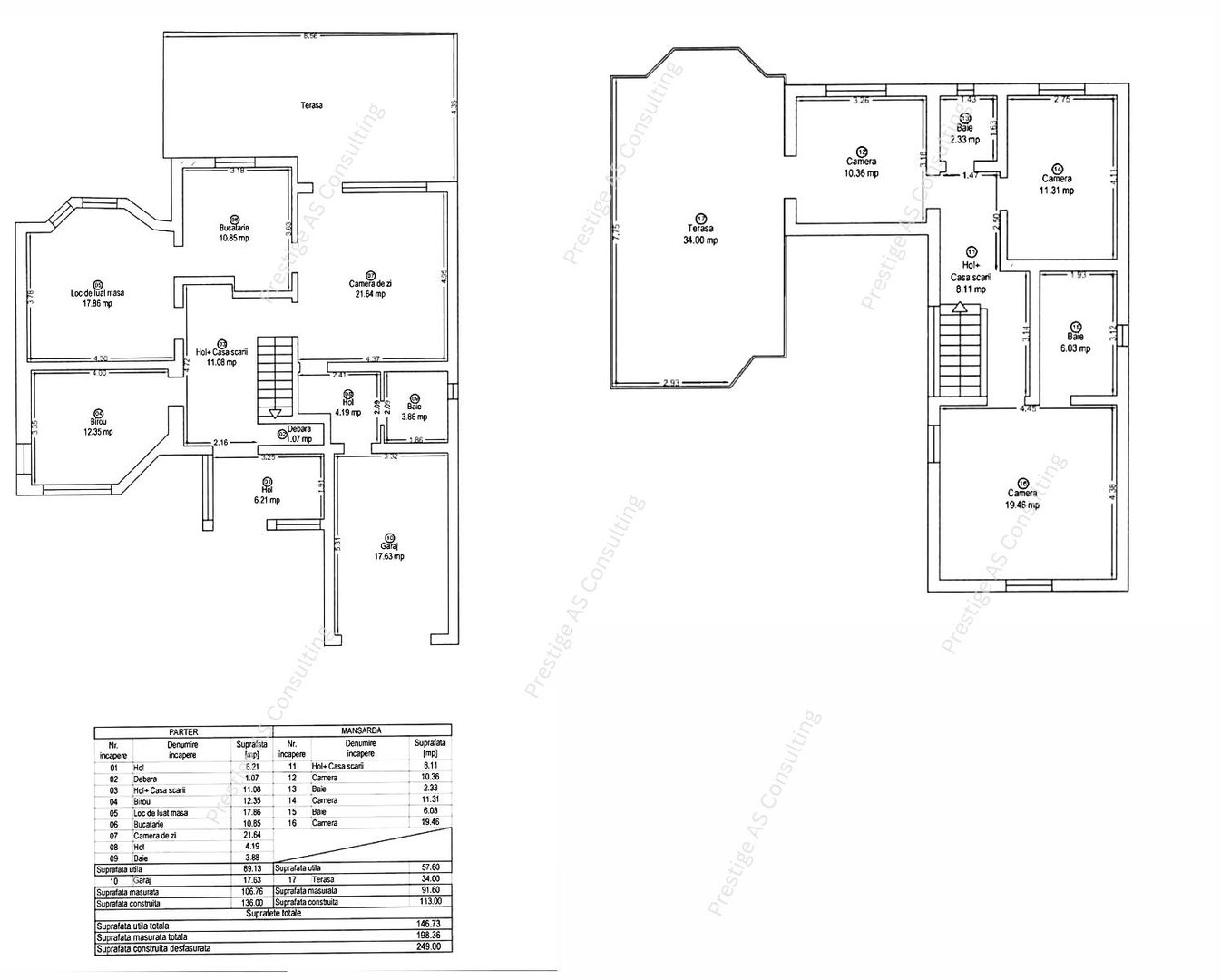
Va propunem spre vanzare, o Vila Individuala noua, compusa din 6 Incaperi+Garaj, situata in Calea Girocului pe Strada Jean Monnet.

Regimul de inlatime este P+1 Etaj+Pod, Anul constructiei 1990,, iar anul renovarii 2017. Suprafata Teren 500mp, Suprafata utila 147mp, Suprafata Garaj 18mp.

Compartimentare:

Parter: Hol Acces, Birou, Dining, Bucatarie, Living (iesire la Terasa), Hol distributie, Baie si iesirea la Garaj.

Etaj: Dormitor 1-iesire la Terasa (34mp), Dormitor 2, Baie si Dormitorul Matrimonial cu Baie proprie.

Dotari: Geamuri tripan noi, Apa la retea si foraj la 110m, Centrala proprie, Instalatie Sanitara schimbata, Placa de beton intre etaje si pod, Acces pod exterior, Centrala proprie-incalzire prin calorifere, 2 aparate de Aer Conditionat, Poarta actionata electric -acces curte si Garaj.

Suntem disponibili pentru a va oferi mai multe detalii.

Citește mai mult

  • Număr camere
    6
  • Dormitoare
    4
  • Număr bucătării
    1
  • Număr băi
    2
  • Geam la baie
    Da
  • Număr terase
    2
  • Număr garaje
    1
  • Număr locuri parcare
    4
  • Disponibilitate
    Imediat
  • Tip casă
    Individual
  • Stare interior
    Bună
  • Suprafață utilă
    147 mp
  • Suprafață construită
    249 mp
  • Suprafață construită la sol (Amprentă)
    100.0 mp
  • Suprafață teren
    500 mp
  • Suprafață curte liberă
    363 mp
  • Deschidere
    23 m
  • Acoperiș
    Țiglă
  • Stadiu construcție
    Finalizată
  • An construcție
    1990
  • Număr etaje clădire
    2
  • Are pod
    Da

Facilități

Acoperiș
Aer condiționat
Apă
Aragaz
Bucătărie închisă
Bucătărie mobilată
Bucătărie utilată
Cabină de duș
Cadă
Calorifere
Canalizare
CATV
Centrală proprie
Curent
Curte
Ferestre PVC
Frigider
Garaj
Gaz
Geamuri tripan
Grădină proprie
Gresie
Hotă
Iluminat stradal
Internet
Izolație exterioară
Loc de joacă copii
Mașină de spălat rufe
Mijloace de transport în comun
Mobilat complet
Parcare deschisă
Parchet
Scară interioară
Spații agrement
Străzi asfaltate
Telecomandă poartă acces auto
Telefon
TV
Uși interior PVC
WC Serviciu
Necesare:

Site-ul nu poate funcționa corect fără aceste cookie-uri. Vezi cookie-urile

Statistică:

Strângem statistici anonime despre voi, vizitatorii unici, pentru a vă îmbunătăți experiența dumneavoastră. Vezi cookie-urile

Marketing:

Pentru a ne promova mai eficient serviciile noastre, folosim cookies pentru a vă identifica și a vă oferi proprietăți și servicii personalizate. Vezi cookie-urile

Acest site folosește cookies, află detalii. Alege ce tipuri de cookies dorești să permitem: