ID CP2136655

Duplex 4 Camere | Intrare Privata-Sanandrei

Această proprietate nu mai este activă,
te invităm să vizualizezi proprietăți similare

ID CP2136655

119,000 €

750 €

Casă / Vilă cu 4 camere de vânzare
Sanandrei
87 mp
2022

Va propunem spre vanzare 3 duplex-uri moderne, noi, situate la 15minute de Timisoara- in comuna Sanandrei.

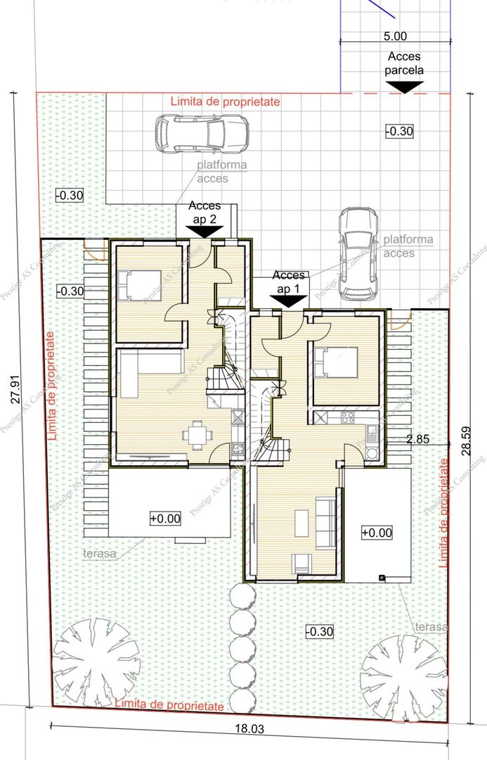
Anul constructiei este 2023, sunt situate intr-o curte privata, accesul realizandu-se cu ajutorul poartei actionate electric.

Suprafata utila 87mp, suprafata Teren 200mp.

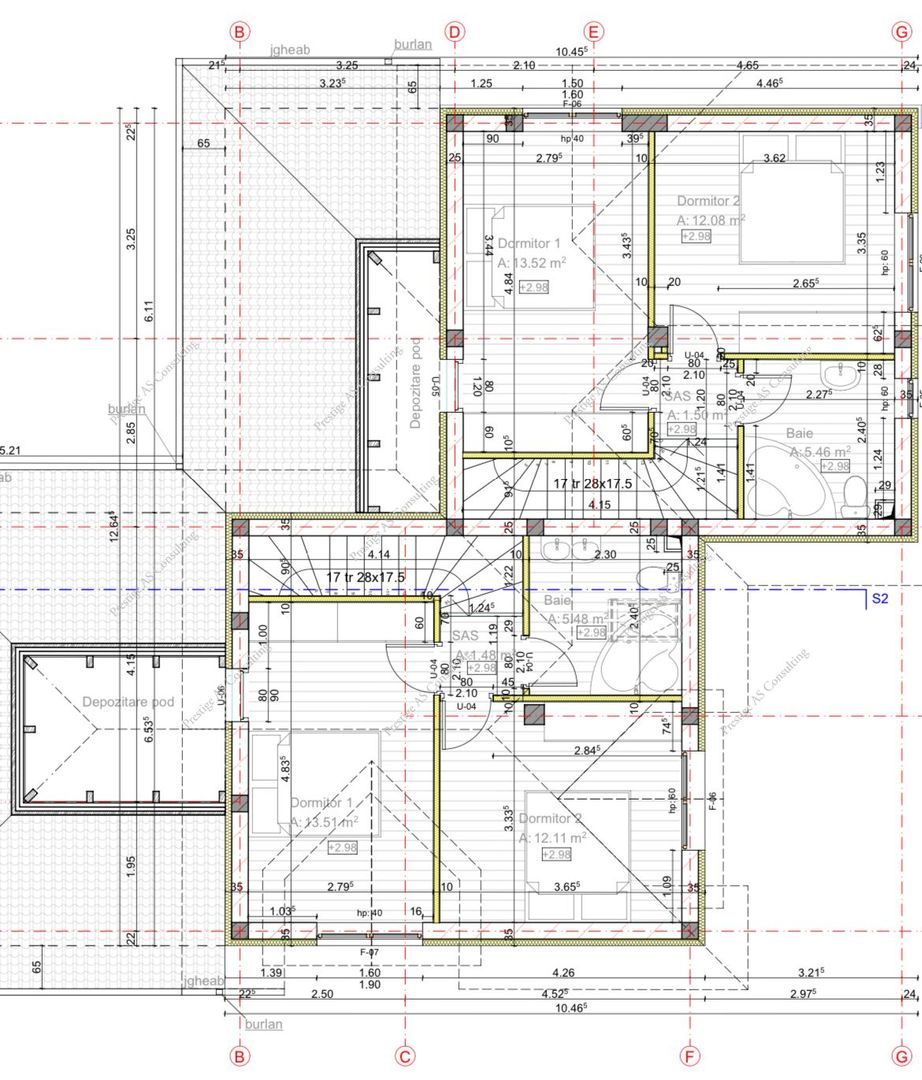
Parter: Hol Acces, Baie, Bucatarie+Living open-space (iesire la Terasa si Curte), Dormitor, Spatiu depozitare;

Scara interioara

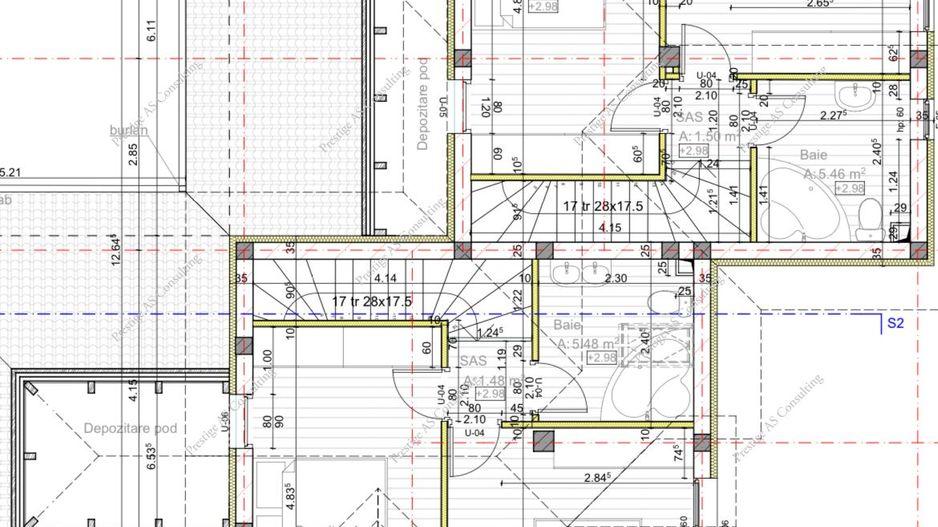
Etaj: 2 Dormitoare+Spatiu depozitare pod, Baie.

Utilitati: Gaz, Curent, Apa, Fosa Septica.

Confortul termic se realizeaza prin centrala proprie-incalzire prin pardoseala.

2 Locuri de parcare sunt disponibile in fata casei.

Suntem disponibili pentru a va oferi mai multe detalii.

Citește mai mult

  • Număr camere
    4
  • Dormitoare
    3
  • Număr bucătării
    1
  • Număr băi
    2
  • Geam la baie
    Da
  • Număr terase
    1
  • Număr locuri parcare
    2
  • Disponibilitate
    Imediat
  • Tip casă
    Duplex
  • Anul finisării
    2023
  • Suprafață utilă
    87 mp
  • Suprafață construită
    100 mp
  • Suprafață construită la sol (Amprentă)
    54.0 mp
  • Suprafață teren
    200 mp
  • Suprafață terasă
    12 mp
  • Acoperiș
    Țiglă
  • Stadiu construcție
    Finalizată
  • An construcție
    2022
  • Construcție nouă
    Da
  • De la dezvoltator
    Da
  • Tip construcție
    Cărămidă
  • Număr etaje clădire
    2
  • Are mansardă
    Da
  • Are pod
    Da

Facilități

Apă
Bucătărie deschisă
Cadă
CATV
Centrală proprie
Curent
Curte
Duș exterior
Ferestre PVC
Fosă septică
Gaz
Iluminat stradal
Încălzire prin pardoseală
Internet
Izolație exterioară
Loc de joacă copii
Mijloace de transport în comun
Nemobilat
Parcare deschisă
Scară interioară
Străzi asfaltate
Telecomandă poartă acces auto
Telefon
Ușă intrare PVC
WC Serviciu
Necesare:

Site-ul nu poate funcționa corect fără aceste cookie-uri. Vezi cookie-urile

Statistică:

Strângem statistici anonime despre voi, vizitatorii unici, pentru a vă îmbunătăți experiența dumneavoastră. Vezi cookie-urile

Marketing:

Pentru a ne promova mai eficient serviciile noastre, folosim cookies pentru a vă identifica și a vă oferi proprietăți și servicii personalizate. Vezi cookie-urile

Acest site folosește cookies, află detalii. Alege ce tipuri de cookies dorești să permitem: