ID CP2102412

Vila 11 Camere | 7 locuri de Parcare | Liziera Padurii-Dumbravita

Această proprietate nu mai este activă,
te invităm să vizualizezi proprietăți similare

ID CP2102412

1,500 €

Casă / Vilă cu 11 camere de închiriat
Dumbravita
384 mp
2012

Va propunem spre inchirere o Vila spatioasa, recent renovata, situata la Liziera Padurii, in spatele benzinariei Socar din Dumbravita, inspre Giarmata Vii.

Avand o suprafata utila generoasa de 384mp, regim de inaltime: Parter+Etaj si Mansarda, vila este pretabila atat pentru locuit, cat si pentru desfasurarea unor activitati ale persoanelor juridice.

Confortul termic se realizeaza prin centrala proprie-calorifere si semineu.

Utilitati: Gaz, Fosa septica (este in curs de implementare a canalizarii), Apa, Curent.

Dotari: Geamuri si usi termopan noi, finisaje noi, calorifere, obiecte sanitare, poarta acces auto curte actionata electric.

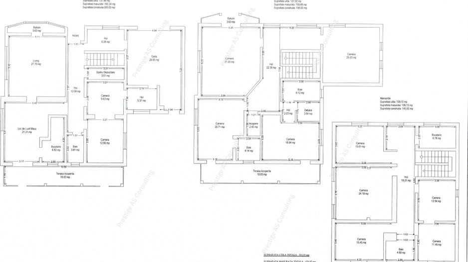
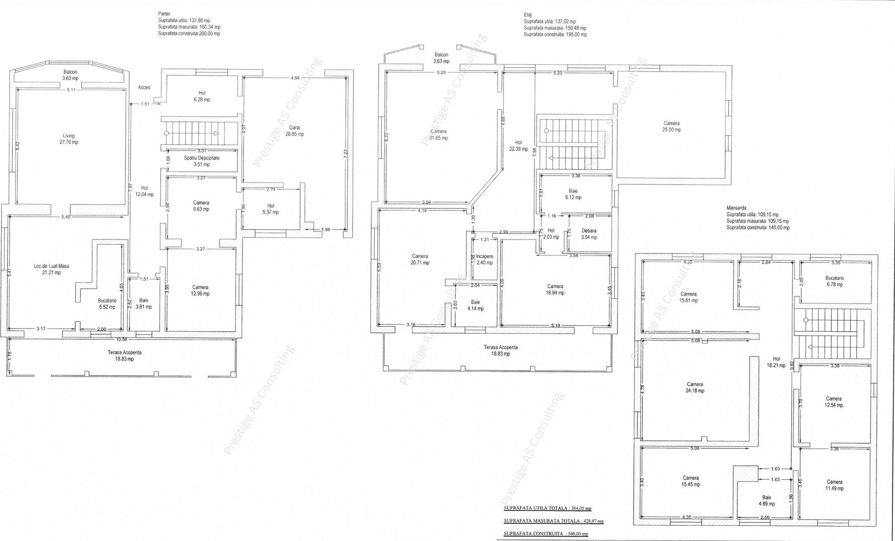
Compartimentare:

Parter: Hol Acces, 
Living (iesire Balcon 4mp), Bucatarie, Dining (iesire Terasa 19mp), Baie, 2 Dormitoare, 
Spatiu depozitare 


Scara interioara

Etaj: 4 Dormitoare/Incaperi
, 2 Bai, 2 spatii depozitare (2mp-4mp), 2 Holuri de distributie, 1 Terasa acoperita 19mp, Balcon 4mp

Mansarda: 5 Dormitoare, 1 Baie, 1 Bucatarie conform RLV/incapere.

Pentru mai multe detalii va suntem la dispozitie.

Citește mai mult

  • Număr camere
    11
  • Dormitoare
    10
  • Număr bucătării
    2
  • Număr băi
    4
  • Geam la baie
    Da
  • Număr balcoane
    2
  • Număr terase
    2
  • Număr locuri parcare
    7
  • Disponibilitate
    Imediat
  • Tip casă
    Individual
  • Anul finisării
    2023
  • Suprafață utilă
    384 mp
  • Suprafață construită
    429 mp
  • Suprafață construită la sol (Amprentă)
    175.0 mp
  • Suprafață teren
    623 mp
  • Suprafață curte
    448 mp
  • Suprafață terasă
    38 mp
  • Deschidere
    32 m
  • Acoperiș
    Țiglă
  • Stadiu construcție
    Finalizată
  • An construcție
    2012
  • Construcție nouă
    Da
  • La revânzare
    Da
  • Tip construcție
    Cărămidă
  • Număr etaje clădire
    2
  • Are mansardă
    Da

Facilități

Acoperiș
Apă
Bucătărie închisă
Calorifere
CATV
Centrală proprie
Curent
Curte
Debara
Dressing
Faianță
Ferestre PVC
Fosă septică
Gaz
Grădină proprie
Gresie
Iluminat stradal
Internet
Izolație exterioară
Nemobilat
Parcare deschisă
Parchet
Scară interioară
Șemineu
Străzi pietruite
Telecomandă poartă acces auto
Telefon
Ușă intrare PVC
Uși interior MDF
Vopsea lavabilă
WC Serviciu
Necesare:

Site-ul nu poate funcționa corect fără aceste cookie-uri. Vezi cookie-urile

Statistică:

Strângem statistici anonime despre voi, vizitatorii unici, pentru a vă îmbunătăți experiența dumneavoastră. Vezi cookie-urile

Marketing:

Pentru a ne promova mai eficient serviciile noastre, folosim cookies pentru a vă identifica și a vă oferi proprietăți și servicii personalizate. Vezi cookie-urile

Acest site folosește cookies, află detalii. Alege ce tipuri de cookies dorești să permitem: